Works
施工事例

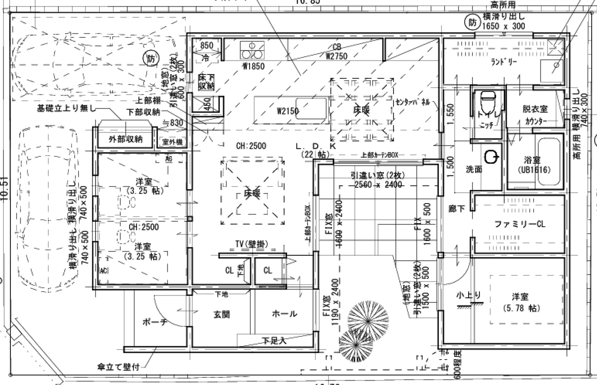
中庭を囲む平屋の住まい岸和田市〇〇の家
中庭を中心に広がる平屋
家の中心に空を取り込むように配置した中庭。その周囲を囲むように平屋の空間を構成しています。リビングやダイニング、各居室から中庭を眺めることができ、家のどこにいても外の気配を感じられる設計としました。建物に囲まれた庭は外部からの視線を遮りながら、光と風を住まいの中心に取り込みます。
土地探しから始まった住まいづくり
今回の住まいづくりは土地探しの段階からスタートしました。エスクリエイトと一緒に土地を検討することで、平屋と中庭が成立する敷地条件を見極めながら土地購入を決断することができました。建物だけでなく、駐車スペースや庭の配置まで想定した上で計画を進めることで、暮らしのイメージを共有しながら住まいづくりを進めることができました。
平屋ならではの暮らしやすさ
ワンフロアで生活が完結する平屋は、生活動線がとてもシンプルです。リビングを中心に各空間がゆるやかにつながり、家族の気配を感じながら暮らすことができます。階段のない住まいは、子育て世代にも安心感のある住環境となります。
プライバシーと開放感を両立
中庭を設けることで、外部からの視線を気にせず大きな開口部を設けることができます。リビングの大きな窓からは中庭の景色が広がり、外に向かって開くのではなく「内に開く」開放的な空間を実現しました。外部環境に左右されないプライベートな屋外空間は、家族のくつろぎの場所としても活躍します。
子育てとともに育つ庭
中庭は家族の生活の中でさまざまな使い方ができる場所です。小さなお子様が安心して遊べる庭として、休日に家族で過ごすアウトドアリビングとして、暮らしのシーンを豊かに広げてくれます。建物と庭が一体となることで、日常の時間をより楽しめる住まいとなりました。
土地と建築のバランス
平屋で中庭をつくる計画は、敷地条件や建物ボリューム、駐車スペースなど多くの要素を整理する必要があります。さらに土地価格と建築費のバランスも重要なポイントです。土地と建築を同時に検討することで、予算と暮らしの理想を両立した計画を実現しました。

岸和田市〇〇の家
- Address:大阪府岸和田市
- Type:木造在来工法
- 階数:地上1階(平屋)
- 延床面積:00.00m² 00.00坪
- Year:2026.00.00
